Property Profile

FOR LEASE

Frisco Medical Links is a premier Class A, 58,481-square-foot medical office building located in one of the most esteemed and rapidly expanding districts in Frisco, Texas. The property is strategically positioned adjacent to the renowned Omni PGA Frisco Resort—an anchor of luxury, tourism, and national visibility—and sits within the prestigious PGA Parkway corridor, one of Frisco’s most celebrated new development zones.

This area has quickly become a destination for high-end commercial, medical, hospitality, and recreational investment, attracting significant corporate interest and establishing itself as a flagship district for innovation and growth. Its proximity to Baylor Scott & White Medical Center – Frisco and a concentration of top-tier medical practices further elevates the region’s reputation as a premier healthcare hub.

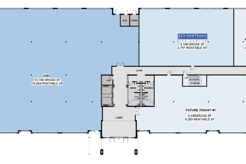
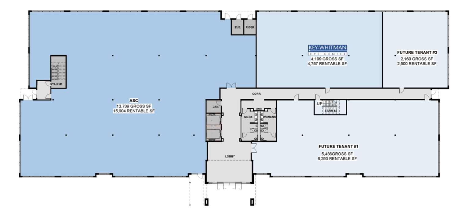
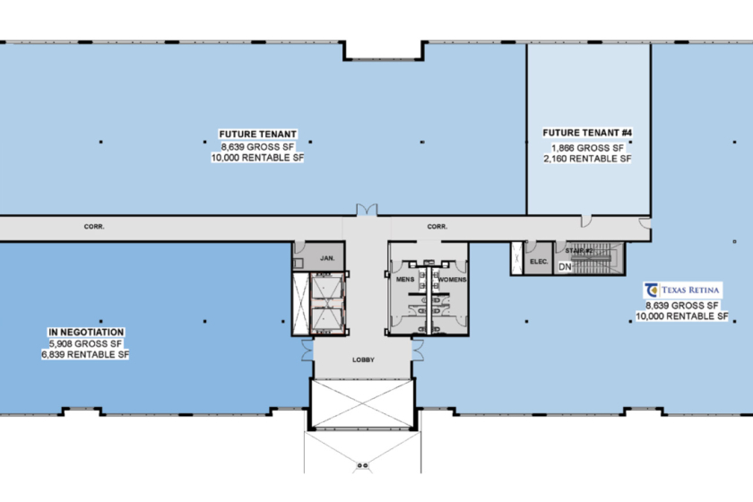
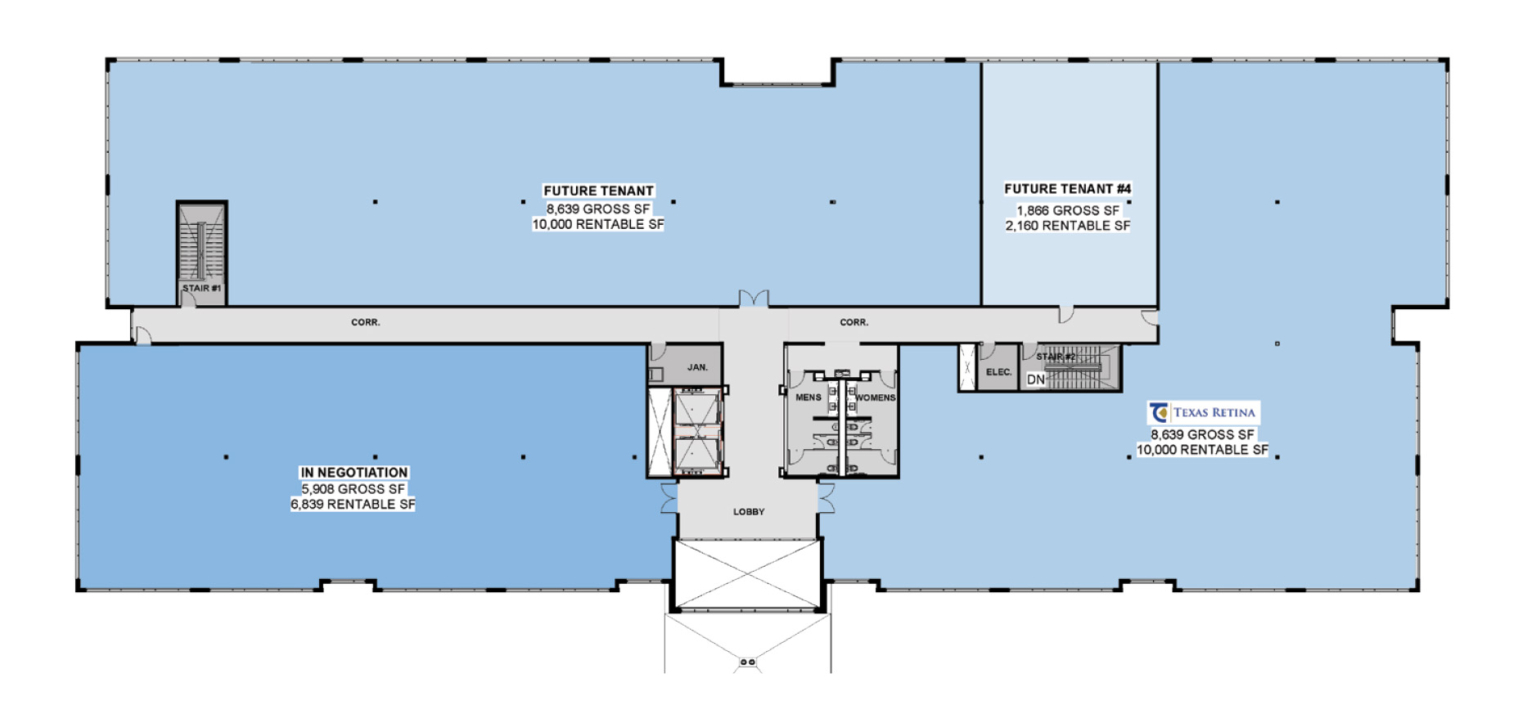
Anchored by nationally recognized tenants—including Key-Whitman Eye Center and Texas Retina Associates—Frisco Medical Links offers advanced clinical space within a multi-tenant environment ideal for a wide range of medical specialties. Tenants benefit from customizable shell space, exceptional visibility, unmatched convenience, and abundant surface parking for both providers and patients. Combined with its location in one of Frisco’s most distinguished and desirable districts, Frisco Medical Links offers an unparalleled setting for premier medical practices.

View Brochure